Imperial

Imperial to trzykomorowy system okienny izolowany termicznie, przeznaczony do produkcji okien o wysokich parametrach cieplnych, dobrej wytrzymałości i szczelności.

System dostępny jest w trzech wersjach termicznych Imperial, Imperial i oraz Imperial i+ co daje możliwość uzyskania parametru przenikalności cieplnej U rzędu 1,10 W/m2K.

Na bazie systemu Imperial możliwe jest wykonanie okien z ukrytym skrzydłem - Imperial SU oraz okien wychylnych na zewnątrz - Imperial OUT.

Charakterystyka produktu

  • system z przekładką termiczną
  • system 3-komorowy
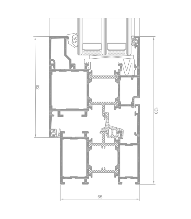
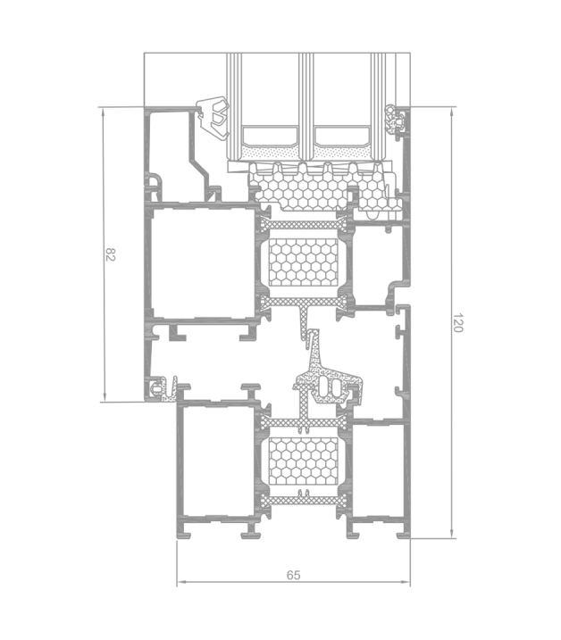
  • głębokość ościeżnicy 65 mm
  • głębokość skrzydła okiennego 74 mm
  • grubość szklenia 4-51 mm
  • 3 uszczelki
  • możliwe szklenie pojedyncze, jedno i dwukomorowe
  • odwodnienie profili w dwóch wariantach tradycyjne lub ukryte
  • podwyższone wersje termiczne i, i+
  • okna rozwierno-uchylne, rozwierne, uchylne, uchylno-przesuwne, witryny 
  • okna odchylane i rozwierne na zewnątrz - podsystem Imperial OUT
  • okna z ukrytym skrzydłem – podsystem Imperial SU
  • listwy do szklenia są dostępne w wariancie prostokątnym i zaokrąglonym
  • możliwość gięcia profili
  • możliwość stosowania zawiasów ukrytych
  • możliwość szklenia od zewnątrz

Dane techniczne

SYSTEM IZOLACYJNOŚĆ TERMICZNA UF* PRZEPUSZCZALNOŚĆ POWIETRZA OBCIĄŻENIE WIATREM WODOSZCZELNOŚĆ
IP i Uf od 1,57 W/m2K Klasa 4; norma PN-EN 12207  Klasa C4; norma PN-EN 12210 Klasa E1350; norma PN-EN 12208
IP i+ Uf od 1,28 W/m2K Klasa 4; norma PN-EN 12207  Klasa C4; norma PN-EN 12210
Klasa E1350; norma PN-EN 12208

Przykładowe parametry U dla okna RU:

  • U= 1,15 W/m2K (dla okna Imperial o wymiarach 1230 x 1480 mm, Ug=0,5)
  • U= 1,10 W/m2K (dla okna Imperial i o wymiarach 1230 x 1480 mm, Ug=0,5)
  • U= 1,08 W/m2K (dla okna Imperial i+ o wymiarach 1230 x 1480 mm, Ug=0,5)

Rysunki techniczne

Zapytaj o produkt

recaptcha This site is protected by reCAPTCHA and the Google Privacy Policy and Terms of Service apply.

Zapytaj o produkt

pole wymagane

recaptcha This site is protected by reCAPTCHA and the Google Privacy Policy and Terms of Service apply.
Skontaktuj
się z nami