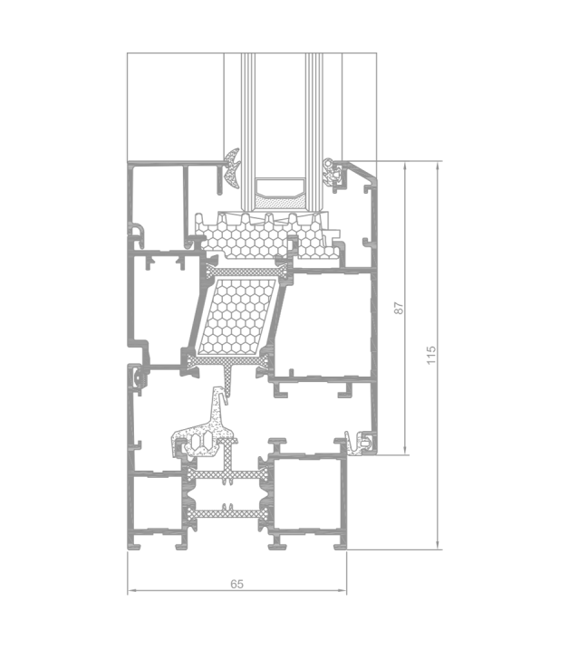
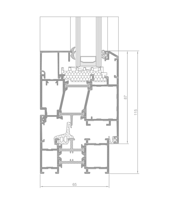
Imperial OUT to trzykomorowy system okienny z izolacja termiczną przeznaczony do projektowania okien odchylanych oraz rozwieranych na zewnątrz.
Jest w pełni kompatybilny z systemem okiennym Imperial (te same elementy systemu: łączniki, uszczelki, listwy szklące).
Charakteryzuje się zlicowaną wewnętrzną powierzchnią ramy i skrzydła.
System występuje w wersji o podwyższonej izolacyjności termicznej: Imperial OUT i, Imperial OUT i+.
| SYSTEM | IZOLACYJNOŚĆ TERMICZNA UF* | PRZEPUSZCZALNOŚĆ POWIETRZA | OBCIĄŻENIE WIATREM | WODOSZCZELNOŚĆ | 
| IP OUT | Uf od 1,85 W/m2K | Klasa 4; norma PN-EN 12207 | Klasa C5/B5; norma PN-EN 12210 | Klasa E900; norma PN-EN 12208 | 
| IP OUT i+ | Uf od 1,68 W/m2K | Klasa 4; norma PN-EN 12207 | Klasa C5/B5; norma PN-EN 12210 | Klasa E900; norma PN-EN 12208 |