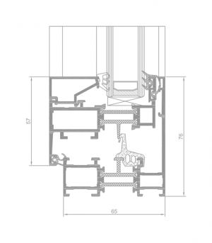
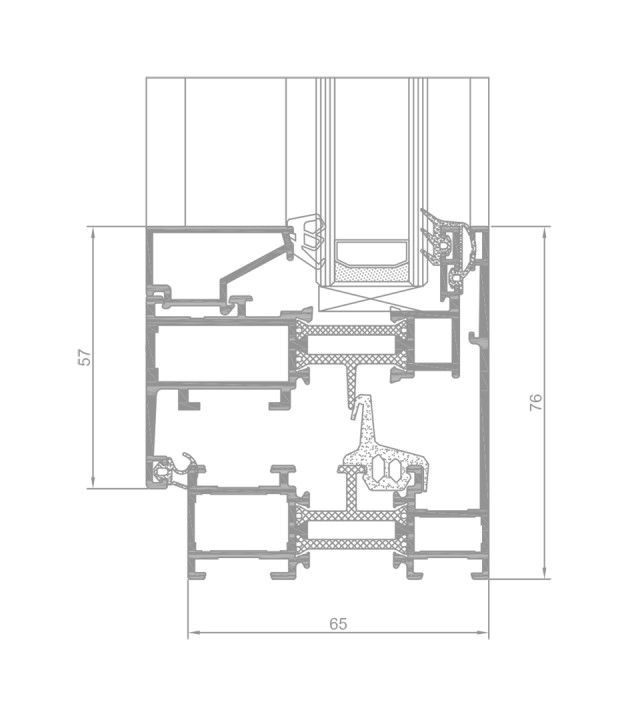
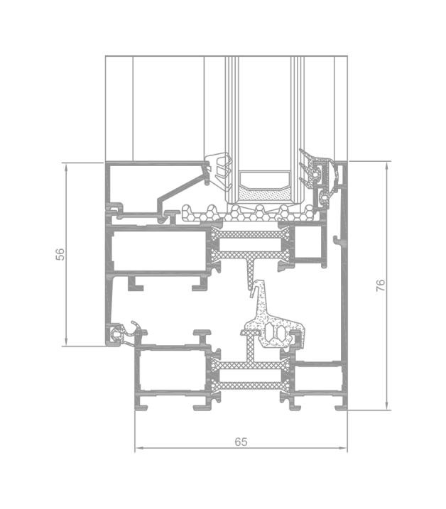
IMPERIAL SU to trzykomorowy system okienny z izolacją termiczną, przeznaczony do konstruowania okien ukrytym, niewidocznym od zewnątrz skrzydłem.
Charakteryzuje się specjalnie zaprojektowanym kształtem ramy, kryjącym całą wysokość profilu skrzydła.
System ukrytego skrzydła to preferowane przez projektantów rozwiązanie, które umożliwia „krycie okien”.
Dzięki zastosowaniu tego typu rozwiązania, okna otwierane i stałe od strony zewnętrznej wyglądają identycznie.
| SYSTEM | IZOLACYJNOŚĆ TERMICZNA UF* | PRZEPUSZCZALNOŚĆ POWIETRZA | OBCIĄŻENIE WIATREM | WODOSZCZELNOŚĆ | 
| IP SU | Uf od 1,63 W/m2K | Klasa 4; norma PN-EN 12207 | Klasa C5; norma PN-EN 12210 | Klasa E1200; norma PN-EN 12208 | 
| IP SU i | Uf od 1,27 W/m2K | Klasa 4; norma PN-EN 12207 | Klasa C5; norma PN-EN 12210 | Klasa E1200; norma PN-EN 12208 |