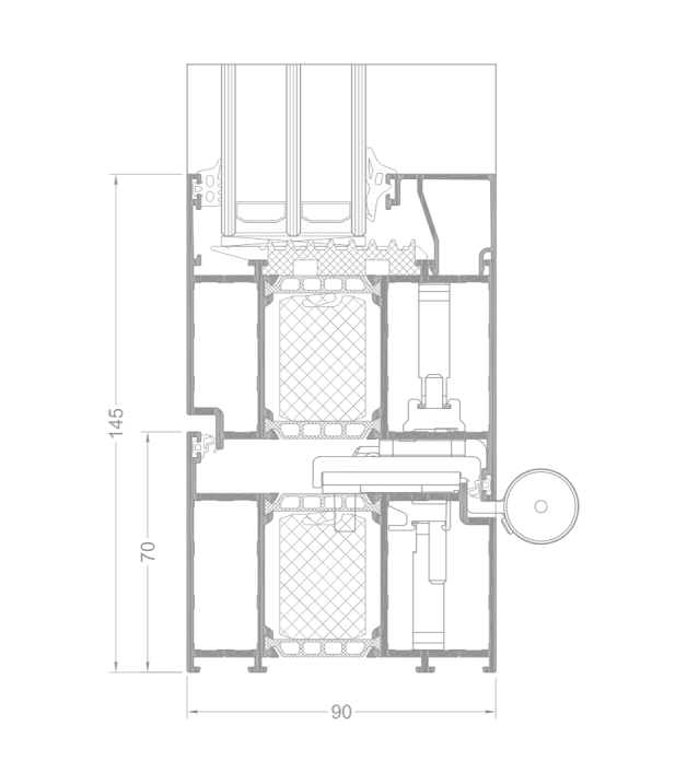
Star to trzykomorowy system drzwiowy z bardzo dobrą izolacyjnością termiczną, przeznaczony do produkcji drzwi o wysokich parametrach cieplnych, bardzo dobrej wytrzymałości i szczelności.
System Star daje możliwość uzyskania parametru przenikalności cieplnej Ud rzędu 1,00 W/m2K.
Na bazie systemu Star możliwe jest wykonanie drzwi panelowych oraz drzwi z przesuniętą osią obrotu – drzwi PIVOT.
| SYSTEM | IZOLACYJNOŚĆ TERMICZNA UF* | PRZEPUSZCZALNOŚĆ POWIETRZA | OBCIĄŻENIE WIATREM | WODOSZCZELNOŚĆ | 
| GT | Uf od 1,21 W/m2K | Klasa 4; PN-EN 12207 | Klasa C5/B5; PN-EN 12210 | Klasa E1350; PN-EN12208 | 
Ud= 0,94 W/m2K (dla drzwi Star o wymiarach 1230x2180mm, Ug=0,5)
Star to zaawansowany trzykomorowy system drzwiowy, który wyróżnia się doskonałą izolacyjnością termiczną. Jest idealnie przeznaczony do produkcji drzwi, które muszą spełniać wysokie wymagania pod względem parametrów cieplnych, wytrzymałości oraz szczelności.
System Star oferuje wyjątkową możliwość uzyskania parametru przenikalności cieplnej na poziomie Ud rzędu 1,00 W/m2K. Jest to dowód na to, jak efektywnie system ten radzi sobie z utrzymaniem ciepła wewnątrz pomieszczenia.