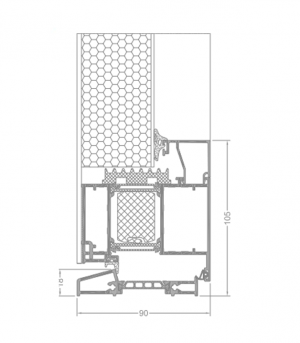
Izolowany termicznie system aluminiowy przeznaczony do projektowania drzwi panelowych jednoskrzydłowych otwieranych do wewnątrz, jak i na zewnątrz.
Skrzydło przystosowane do wykonania panelu jednostronnie i dwustronnie klejonego.
System kompatybilny z systemem Star.
Szeroki wybór paneli zapewnia elegancji wygląd oraz pozwala na dużą swobodę w projektowaniu.
| SYSTEM | IZOLACYJNOŚĆ TERMICZNA UF* | PRZEPUSZCZALNOŚĆ POWIETRZA | OBCIĄŻENIE WIATREM | WODOSZCZELNOŚĆ | 
| PD GT | od 0,73 W/m2K | Klasa 4; PN-EN 12207 | E2400; EN 12210 | 7A (300Pa); EN12208 | 
System aluminiowy o doskonałej izolacji termicznej, idealnie nadający się do projektowania drzwi panelowych jednoskrzydłowych. Umożliwia otwieranie drzwi zarówno do wewnątrz, jak i na zewnątrz. Skrzydło jest przystosowane do montażu panelu klejonego zarówno jedno-, jak i dwustronnie.
System jest w pełni kompatybilny z systemem Star. Dodatkowo, szeroka gama dostępnych paneli gwarantuje elegancki wygląd i pozwala na indywidualne dostosowanie designu drzwi.