Genesis 75

Genesis 75 to trzykomorowy system okienny z bardzo dobrą izolacyjnością termiczną, przeznaczony do produkcji okien o wysokich parametrach cieplnych, bardzo dobrej wytrzymałości i szczelności.

System dostępny jest w trzech wersjach termicznych Genesis 75, Genesis 75i oraz Genesis 75i+ co daje możliwość uzyskania parametru przenikalności cieplnej U rzędu 0,90W/m2K.

Dużym atutem tego systemu jest możliwość stosowania uszczelki centralnej co zapewnia dodatkową szczelność.

Na bazie systemu Genesis 75 możliwe jest wykonanie okien z ukrytym skrzydłem - Genesis SU oraz okien wychylnych na zewnątrz Genesis - OUT.

Charakterystyka produktu

  • system z przekładką termiczną
  • system 3-komorowy
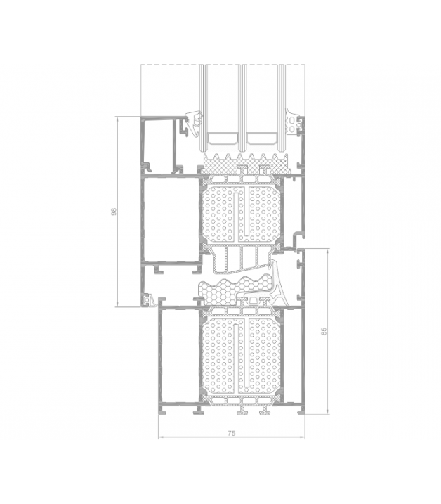
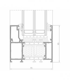
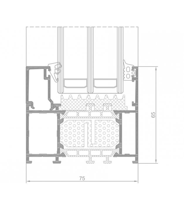
  • głębokość ościeżnicy 75 mm
  • głębokość skrzydła okiennego 84 mm
  • grubość szklenia kwatery stałej 1-56 mm
  • grubość szklenia skrzydła 9-65 mm
  • 3 uszczelki
  • możliwe szklenie pojedyncze, jedno i dwukomorowe
  • podwyższone wersje termiczne i, i+
  • okna rozwierno-uchylne, rozwierne, uchylne, uchylno-przesuwne, witryny  
  • okna odchylane i rozwierane na zewnątrz - podsystem Genesis OUT
  • możliwość stosowania zawiasów ukrytych
  • możliwość szklenia od zewnątrz
  • możliwość wykonania całoszklanego połączenia narożnika pod kątem 90 stopni


Dane techniczne

SYSTEM IZOLACYJNOŚĆ TERMICZNA UF* PRZEPUSZCZALNOŚĆ POWIETRZA OBCIĄŻENIE WIATREM WODOSZCZELNOŚĆ
GN 75 Uf od 1,48 W/m2K Klasa 4; norma PL-EN 12207 E2400 (2400 Pa); PN-EN 12210 E1800 (1800 Pa)/E1950*(E1950 Pa);
PN-EN 12208
GN 75 i + Uf od 0,76 W/m2K Klasa 4; PN-EN 12207 E2400 (2400 Pa); PN-EN 12210 E1800 (1800 Pa)/E1950*(E1950 Pa);
PN-EN 12208

Przykładowe parametry U dla okna RU:

  • U= 0,95 W/m2K (dla okna Genesis75 o wymiarach 1230 x 1480 mm, Ug=0,5)
  • U= 0,89 W/m2K (dla okna Genesis75 i o wymiarach 1230 x 1480 mm, Ug=0,5)
  • U= 0,82 W/m2K (dla okna Genesis75 i+ o wymiarach 1230 x 1480 mm, Ug=0,5)

Rysunki techniczne

Zapytaj o produkt

recaptcha This site is protected by reCAPTCHA and the Google Privacy Policy and Terms of Service apply.

Zapytaj o produkt

pole wymagane

recaptcha This site is protected by reCAPTCHA and the Google Privacy Policy and Terms of Service apply.
Skontaktuj
się z nami