Genesis SU

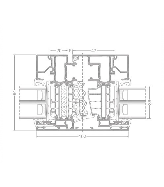
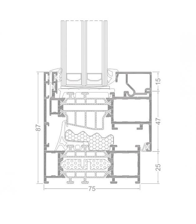
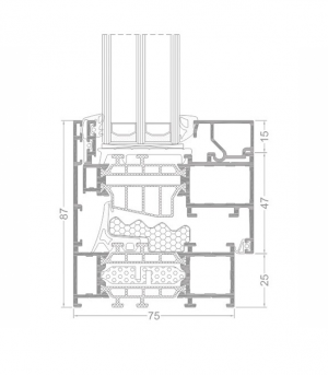
GENESIS SU to trzykomorowy system okienny z izolacją termiczną, przeznaczony do konstruowania okien z ukrytym, niewidocznym od zewnątrz skrzydłem.

Charakteryzuje się specjalnie zaprojektowanym kształtem ramy, kryjącym całą wysokość profilu skrzydła.

Dzięki zastosowaniu tego typu rozwiązania, kwatery otwierane i stałe od strony zewnętrznej wyglądają identycznie.

Charakterystyka produktu

  • system z przekładką termiczną
  • system 3-komorowy
  • głębokość ościeżnicy 75 mm
  • głębokość skrzydła okiennego 79,5 mm
  • grubość szklenia max 62 mm skrzydło/max 59 mm fix
  • 3 uszczelki
  • możliwe szklenie jedno i dwukomorowe
  • możliwe podwyższone wersje termiczne i, i+
  • okna rozwierno-uchylne, rozwierne, uchylne


Dane techniczne

SYSTEM IZOLACYJNOŚĆ TERMICZNA UF* PRZEPUSZCZALNOŚĆ POWIETRZA OBCIĄŻENIE WIATREM WODOSZCZELNOŚĆ
GN SU Uf od 1,47 W/m2K Klasa 4; PN-EN 12207 Klasa C5/B5 (2000 Pa); PN-EN 12210 Klasa E1950; PN-EN 12208
GN SU i Uf od 0,82 W/m2K Klasa 4; PN-EN 12207 Klasa C5/B5 (2000 Pa); PN-EN 12210 Klasa E1950; PN-EN 12208
GN SU i+ Uf od 0,79 W/m2K Klasa 4; PN-EN 12207 Klasa C5/B5 (2000 Pa); PN-EN 12210 Klasa E1950; PN-EN 12208

Rysunki techniczne

Zapytaj o produkt

recaptcha This site is protected by reCAPTCHA and the Google Privacy Policy and Terms of Service apply.

Zapytaj o produkt

pole wymagane

recaptcha This site is protected by reCAPTCHA and the Google Privacy Policy and Terms of Service apply.
Skontaktuj
się z nami