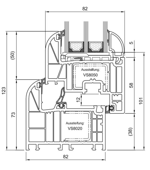
Bluevolution 82 Art Line to luksusowy profil o zaokrąglonym kształcie dla wymagających klientów.
Zewnętrzne ścianki profilu o grubości 3mm zapewniają spełnienie aktualnie najwyższych standardów (profil klasy A wg norm).
Bluevolution 82 Art Line spełnia warunki dofinansowania w ramach projektu „Czyste powietrze”, które prowadzi działania termomodernizacyjne skutecznie redukujące straty energii w budynkach.
Termo Profil Sp. z o.o. uzyskała dofinansowanie na realizację projektu pt. „Wdrożenie nowej technologii zgrzewania kształtowego okien PVC” w ramach Funduszy Europejskich dla Śląskiego 2021-2027 - Fundusz na rzecz Sprawiedliwej Transformacji. Celem projektu jest wdrożenie nowej technologii zgrzewania kształtowego w firmie Termo Profil Sp. z o.o., poprzez zakup automatycznej linii zgrzewającej, która pozwoli wytwarzać okna o lepszej jakości i estetyce oraz zmniejszyć energochłonność procesu zgrzewania.

Kolory przedstawione na wyżej zamieszczonych zdjęciach mogą minimalnie odbiegać od kolorów rzeczywistych
Klamki okienne SECUSTIC LUXEMBURG:.
Klamki Secustic dostępne są także:
Klamki okienne PLUTON / VICTORY:
Klamki dostępne są także:
KLAMKI ANTYWŁAMANIOWE SECUFORTE HAMBURG TO:
Klamki SECUFORTE są dostępne również:
KLAMKI ANTYWŁAMANIOWE SECUFORTE TOULON TO:
Klamki są dostępne również:
Klamki Roto Swing to nowoczesne wzornictwo klamek.
Zachwycają swoim ergonomicznym kształtem i stanowią ekskluzywny element wystroju okna.
Klamki Roto Swing:
Klamki SWING dostępne także:
Klamki okienne TALLINN:
Klamki balkonowe PLUTON / VICTORY:
Klamki dostępne są także:
Klamki balkonowe pod roletę PLUTON / VICTORY:
RN Klamki balkonowe do szerokiego skrzydła:
RR klamki balkonowe do szerokiego skrzydła pod roletę:
W oknach uchylno-rozwiernych okucie w standardzie posiada funkcję mikrowentylacji – czyli możliwość ustawienia 2-3 mm. szczeliny (minimalny uchył) pozwalającej na przepływ powietrza.
W standardzie zastosowano element dwufunkcyjny DFE, który zawiera funkcję blokady obrotu klamki oraz wślizg skrzydła. System ryglowania oparty jest na trzpieniach w kształcie ośmiokątnych grzybków, które współpracują z zaczepami standardowymi lub antywłamaniowymi.
Grzybki umożliwiają łatwą, ręczną regulację docisku.
W oknach uchylno-rozwiernych zawiasy są niewidoczne przy zamkniętym oknie, ponieważ są w całości schowane w suchej komorze pomiędzy skrzydłem a ramą okna.
Dzięki temu nie powstaje mostek termiczny. Na całym obwodzie skrzydła zachowana jest ciągłość uszczelki. Punkty ryglowania mogą być usytuowane blisko naroży okna, gwarantując większą stabilność i zabezpieczenie przed włamaniem.
W standardzie okucie posiada funkcję mikrowentylacji oraz element dwufunkcyjny DFE. System ryglowania oparty jest na trzpieniach w kształcie ośmiokątnych grzybków.
Okucie uchylno-rozwierne z funkcją równoległego odstawienia skrzydła od ramy.
Pomiędzy skrzydłem a ramą tworzy się ok. 6-milimetrowa szczelina na całym obwodzie okna, która umożliwia naturalne przewietrzanie przy bezpiecznie zaryglowanym oknie. Podwójna funkcja klamki w pozycji poziomej. Jeśli przekręcimy klamkę od dołu do pozycji poziomej, uzyskujemy funkcję uchylną. Obrót klamki w górę o kolejne 90° spowoduje odstawienie skrzydła od ramy o 6 mm. Jeśli teraz obrócimy klamkę do pozycji poziomej, możemy otworzyć skrzydło. Aby okno zamknąć, przekręcamy klamkę w dół do pozycji wyjściowej.
Odporność na włamanie w klasie RC2 także w pozycji odstawienia skrzydła przy jednoskrzydłowych elementach. W standardzie okucie posiada element dwufunkcyjny DFE. System ryglowania oparty jest na trzpieniach w kształcie ośmiokątnych grzybków.
Okucie activPilot TiltFirst z odwróconą kolejnością otwierana – najpierw uchył.
Jeśli przekręcimy klamkę od dołu do pozycji poziomej, uzyskujemy funkcję uchylną. Obrót klamki w górę o kolejne 90° umożliwi rozwarcie skrzydła.
Okucie activPilot TiltFirst stosowane tylko z dedykowaną klamką TBT z kluczykiem. W standardzie okucie posiada funkcję mikrowentylacji oraz element dwufunkcyjny DFE. System ryglowania oparty jest na trzpieniach w kształcie ośmiokątnych grzybków. Okucie znajduje zastosowanie w obiektach użyteczności publicznej, przedszkolach, szpitalach, a także w domach jako zabezpieczenie przed ingerencją dzieci.
NOWY SPOSÓB KONTROLI OTWARCIA OKNA.
Okna wyposażone w blokadę BEZPIECZNY UŻYTKOWNIK lepiej chronią Ciebie i Twoich najbliższych - małe dzieci, osoby starsze, Twoich gości, przed nieszczęśliwym wypadkiem, do którego może dojść przy niekontrolowanym otwarciu okna.
To specjalna blokada, którą można zastosować w nowych a także już zamontowanych oknach - w budynkach prywatnych, w budynkach użyteczności publicznej a także w hotelach, szpitalach, akademikach.
BEZPIECZNY UŻYTKOWNIK został opatentowany przez przez firmę Termo Profil.
Sposób działania blokady można zobaczyć tutaj.
WINDYY - magnetyczna blokadę rozwarcia do kien i drzwi balkonowych.
Windyy daje możliwość zatrzymania okna i drzwi balkonowych w dowolnym położeniu. W tej sposób można dostosować szerokość rozwarcia okna lub uchyłu od indywidualnych potrzeb.
Magnesy, w które wyposażona jest blokada powodują, iż siła wiatru, przeciągu lub zwierzę nie mogą zmienić położenia otwartego okna, a człowiek musi użyć większej siły w porównaniu z oknem bez blokady.
Blokada jest niewidoczna po zamknięciu okna.
W prosty sposób można zamontować ją do okien i drzwi balkonowych z PVC  w systemie AD.
Szkło ornamentowe jest szkłem o zmniejszonej przejrzystości, która wynika z rozproszenia promieni świetlnych na jego wzorzystej powierzchni.
Jego zadaniem jest przepuszczenie światła słonecznego i jednocześnie zapewnienie prywatności.
Ma zastosowanie zarówno w budownictwie mieszkaniowym jak i przemysłowym. Idealnie sprawdza się np. w oknach łazienkowych, oknach piwnicznych, garażach czy drzwiach wejściowych.
Szkło nowej generacji z powłoką ECLAZ to gwarancja podniesienia standardów okien, gdyż szklenie to osiąga najwyższy na rynku wskaźnik przepuszczalności światła naturalnego.
Nawiewniki higrosterowane : sterowanie automatyczne uzależnione od poziomu wilgotności powietrza w pomieszczeniu. Działanie bez udziału człowieka, nie jest także wymagane zasilanie elektryczne.
DOSTĘPNE NAWIEWNIKI HIGROSTEROWANE:
Dostępna kolorystyka : RAL9003, 8017, 8001, 7016, 7045
Nawiewniki ciśnieniowe: sterowanie automatyczne, ilość dostarczanego powietrza zależy od różnicy ciśnienia na zewnątrz i wewnątrz budynku.
DOSTĘPNE NAWIEWNIKI CIŚNIENIOWE:
Dostępna kolorystyka nawiewników ciśnieniowych AERECO : RAL9003, 8017, 8001, 7016
Dostępna kolorystyka nawiewników ciśnieniowych VENTAIR : RAL9016, 7016, 8003, 8017
Nawiewniki przyszybowe Renson– nawiewniki aluminiowe, montowane w górnej części pakietu szybowego. Zastępują część pakietu szybowego i jednocześnie są miejscem osadzenia szyby.
Rensony można zamontować w pakietach szybowych o grubości 24 mm.
Dostępna kolorystyka: wszystkie kolory z palety RAL.
 Certyfikat - Autoryzowany Producent Okien i Drzwi PVC
(format: pdf, rozmiar: 204.5K)
 Współczynnik UW BluEvolution 82 Ug=0,5 PL
(format: pdf, rozmiar: 452.1K)