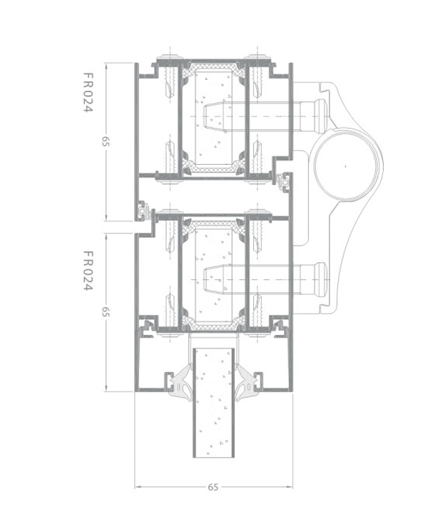
FR65

System FR65 to izolowany termicznie system do budowy wewnętrznych drzwi przeciwpożarowych, drzwi przeciwpożarowych i dymoszczelnych oraz ścian wewnętrznych w klasie odpornosci ogniowej EI30.

Charakterystyka produktu

  • głębokość zabudowy 65 mm
  • symetryczna budowa profila
  • komora środkowa wypełniona wkładami gipsowymi
  • głębokość wypełnienia od 17 mm do 48 mm
  • system kompatybilny z systemami o głębokości zabudowy 65 mm (Imperial, Ecofutural)
  • konstrukcje drzwiowe jedno i dwuskrzydłowe, przeszklenia stałe
  • możliwość wykonywania drzwi ognioodpornych i dymoszczelnych
  • możliwe do zastosowania rozwiązania progowe lub bezprogowe
  • kopniak (wysoki cokół)
  • optymalizacja profili (jeden rodzaj profili do ramy drzwiowej i skrzydła)
  • szybka i prosta prefabrykacja (brak obróbki listwy szklącej)



Rysunki techniczne

Zapytaj o produkt

recaptcha This site is protected by reCAPTCHA and the Google Privacy Policy and Terms of Service apply.

Zapytaj o produkt

pole wymagane

recaptcha This site is protected by reCAPTCHA and the Google Privacy Policy and Terms of Service apply.
Skontaktuj
się z nami