Panorama

System Panorama to system drzwi harmonijkowych umożliwiających aranżację szerokich, otwartych przejść.

Zamknięte drzwi tworzą estetyczne przeszklenia, a po otwarciu dają swobodny dostęp do tarasu lub ogrodu.

Drzwi harmonijkowe Panorama mogą składać się z wielu konfiguracji skrzydeł otwieranych do wewnątrz lub na zewnątrz budynku.

System może być wykonany z płaskim progiem lub progiem wykonywanym na bazie ościeżnicy.

System tworzy zgrabną konstrukcję chętnie montowaną jako zabudowa balkonów, tarasów lub ogrodów zimowych, sprawdza się w budynkach użyteczności publicznej i obiektach komercyjnych.

Charakterystyka produktu

  • system z przekładką termiczną
  • głębokość ościeżnicy 74,5 mm
  • głębokość skrzydła: 74,5 mm
  • grubość wypełnienia: od 16 mm do 50 mm
  • maksymalny ciężar skrzydła: 100 kg
  • możliwość płaskiego progu
  • otwieranie do wewnątrz lub na zewnątrz budynku
  • wersje termiczne: Panorama, Panorama i

Dane techniczne

SYSTEM IZOLACYJNOŚĆ TERMICZNA UF* PRZEPUSZCZALNOŚĆ POWIETRZA OBCIĄŻENIE WIATREM WODOSZCZELNOŚĆ
DV Uf od 1,68 W/m2K klasa 2; PN-EN 12207 C1 (400Pa); PN-EN 12210 Klasa E1050; PN-EN 12208
DV i+ Uf od 1,33 W/m2K klasa 2; PN-EN 12207 C1 (400Pa); PN-EN 12210 Klasa E1050; PN-EN 12208

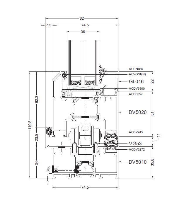
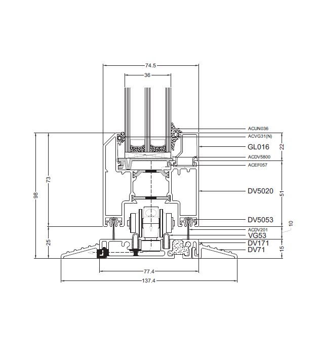
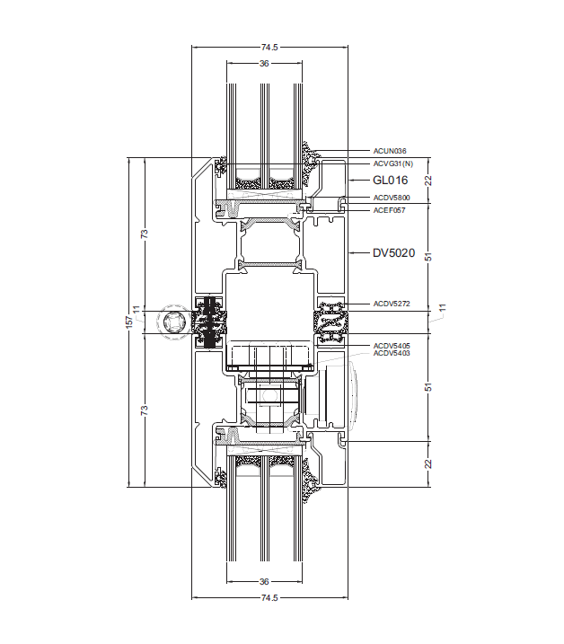
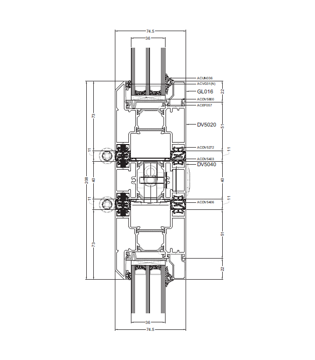
Rysunki techniczne

Zapytaj o produkt

recaptcha This site is protected by reCAPTCHA and the Google Privacy Policy and Terms of Service apply.

Zapytaj o produkt

pole wymagane

recaptcha This site is protected by reCAPTCHA and the Google Privacy Policy and Terms of Service apply.
Skontaktuj
się z nami