Visoglide Plus

Trójkomorowy system Visoglide Plus jest przeznaczony do projektowania drzwi przesuwnych i podnoszono-przesuwnych.

Idealnie sprawdza się w budowie ogrodów zimowych, patio, tarasów i werand. Możliwe rozwiązanie z ekstremalnie wąskim słupkiem labiryntowym o szerokości 34 mm.

Dostępne wersje systemu z niskim progiem - Visoglide Plus niski próg, oraz Visoglide Plus Monorail.

Charakterystyka produktu

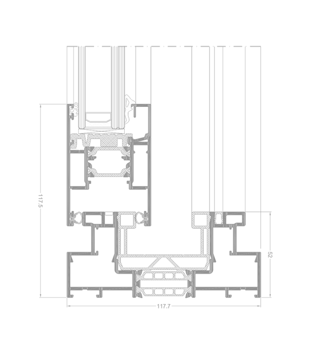
  • system z przekładką termiczną
  • głębokość ościeżnicy: 118/125 mm – 2 tory, 184/192 mm– 3tory
  • głębokość skrzydła 51 mm
  • grubość szklenia do 36 mm
  • wąski słupek labiryntowy – 34 mm
  • maksymalny ciężar skrzydła dla opcji przesuwnej: 250 kg
  • maksymalny ciężar skrzydła dla opcji podnoszono-przesuwnej: 200 kg
  • możliwe kombinacje dwu, trzy, czteroelementowe na bazie ościeżnicy dwutorowej
  • możliwe kombinacje trzy i sześcioelementowe na bazie ościeżnicy trójtorowej

Dane techniczne

SYSTEM IZOLACYJNOŚĆ TERMICZNA UF* PRZEPUSZCZALNOŚĆ POWIETRZA OBCIĄŻENIE WIATREM WODOSZCZELNOŚĆ
VG Plus Uf od 2,1 W/m2 klasa 4; norma PN-EN 12207 C3/B4 (1200Pa); norma PN-EN 12210 9A; norma PN-EN 12208

Rysunki techniczne

Zapytaj o produkt

recaptcha This site is protected by reCAPTCHA and the Google Privacy Policy and Terms of Service apply.

Zapytaj o produkt

pole wymagane

recaptcha This site is protected by reCAPTCHA and the Google Privacy Policy and Terms of Service apply.

Visoglide Plus – Nowoczesne Systemy Przesuwne od TERMO PROFIL

Odkryj Zalety Systemów Przesuwnych Visoglide Plus

System przesuwny Visoglide Plus, prezentowany przez TERMO PROFIL, to innowacyjne rozwiązanie w dziedzinie nowoczesnych systemów przesuwnych. Idealnie sprawdzający się w budowie ogrodów zimowych, patio, tarasów i werand.

Charakterystyka Systemu Visoglide Plus


  • Optymalne Wykorzystanie Światła: Duże przeszklenia pozwalają na maksymalne doświetlenie wnętrz.
  • Wszechstronność Zastosowań: Idealny do ogrodów zimowych, patio, tarasów i werand.

Dlaczego Wybrać Visoglide Plus?

  1. Nowoczesny Wygląd: System Visoglide Plus oferuje nowoczesny design, który doskonale komponuje się z każdym wnętrzem.
  2. Maksymalne Doświetlenie: Duże przeszklenia zapewniają naturalne światło w pomieszczeniach.

Zastosowania Systemu Visoglide Plus

  • Ogrody Zimowe: Doskonały do tworzenia eleganckich, przeszklonych przestrzeni w ogrodach zimowych.
  • Patio i Tarasy: Idealny do zabudowy patio i tarasów, zapewniając styl i funkcjonalność.
  • Werandy: Możliwość wykorzystania jako stylowych, przeszklonych werand, zwiększających przestrzeń użytkową.
Skontaktuj
się z nami