Drzwi aluminiowe Ecofutural

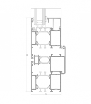
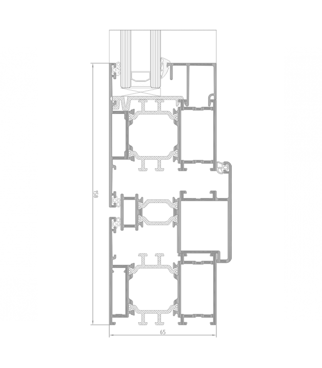
Ecofutural to trzykomorowy system drzwiowy izolowany termicznie, przeznaczony do produkcji drzwi o wysokich parametrach cieplnych, dobrej wytrzymałości i szczelności. System dostępny jest w trzech wersjach termicznych: Ecofutural, Ecofutural i oraz Ecofutural i+, co daje możliwość uzyskania parametru przenikalności cieplnej Ud rzędu 1,10 W/m2K. Na bazie systemu Ecofutural możliwe jest wykonanie drzwi z przesuniętą osią obrotu – drzwi PIVOT.

Charakterystyka produktu

  • system z przekładką termiczną
  • system 3-komorowy
  • głębokość ramy drzwiowej 65 mm
  • głębokość skrzydła drzwiowego 65 mm
  • grubość wypełnienia wkładanego 4-50 mm

Przykładowe parametry U dla drzwi:

Ud= 1,09 W/m2K (dla drzwi Ecofutural o wymiarach 1230x2180mm, Ug=0,5)

Ud= 1,07 W/m2K (dla drzwi Ecofutural i o wymiarach 1230x2180mm, Ug=0,5)

Ud= 1,05 W/m2K (dla drzwi Ecofutural i+ o wymiarach 1230x2180mm, Ug=0,5)

Rysunki techniczne

Zapytaj o produkt

recaptcha This site is protected by reCAPTCHA and the Google Privacy Policy and Terms of Service apply.

Zapytaj o produkt

pole wymagane

recaptcha This site is protected by reCAPTCHA and the Google Privacy Policy and Terms of Service apply.

System drzwiowy Ecofutural z Aluminium

Wprowadzenie

System drzwiowy Ecofutural z aluminium to nowoczesne rozwiązanie dla tych, którzy poszukują wyjątkowej izolacji termicznej, trwałości i estetyki. Dzięki zaawansowanej technologii trzykomorowego systemu, te drzwi gwarantują doskonałe parametry cieplne oraz niezrównaną szczelność.

Kluczowe Cechy Systemu drzwiowego Ecofutural

Trzykomorowy System Izolacji

Głębokość ramy drzwiowej: 65 mm

Głębokość skrzydła drzwiowego: 65 mm

Grubość wypełnienia wkładanego: 4-50 mm

Parametry Cieplne

Ud= 1,09 W/m2K dla drzwi Ecofutural o wymiarach 1230x2180mm, Ug=0,5

Ud= 1,07 W/m2K dla drzwi Ecofutural i o wymiarach 1230x2180mm, Ug=0,5

Ud= 1,05 W/m2K dla drzwi Ecofutural i+ o wymiarach 1230x2180mm, Ug=0,5

Zastosowanie w różnych obiektach

Systemy drzwiowe Ecofutural znajdują zastosowanie w obiektach użyteczności publicznej oraz w domach.

Podsumowanie

Drzwi Ecofutural z aluminium to połączenie innowacyjności z funkcjonalnością. Jeśli szukasz drzwi, które spełnią Twoje oczekiwania w zakresie izolacji termicznej i bezpieczeństwa, Ecofutural jest idealnym wyborem.

Skontaktuj
się z nami