Drzwi aluminiowe Econoline

ECONOLINE to system bez izolacji termicznej do tworzenia drzwi przeznaczonych do ogólnego stosowania w budynkach użyteczności publicznej i przemysłowych (w pomieszczeniach biurowych).

Drzwi można wbudować w ściany działowe wykonane z segmentów Econoline.

Na bazie systemu Econoline istnieje możliwość projektowania drzwi przesuwnych, wahadłowych, dymoszczelnych i drzwi panelowych (Econoline panel doors).

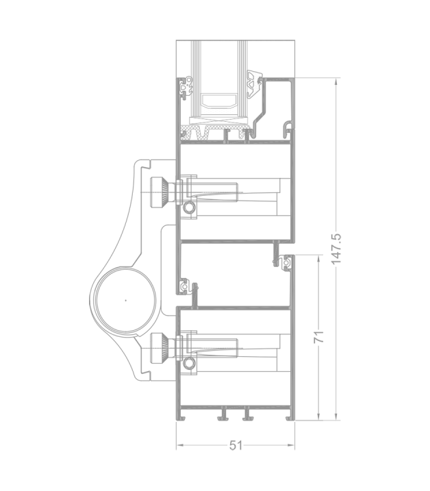
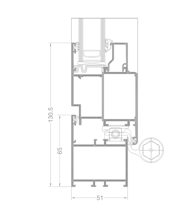
Charakterystyka produktu

  • system bez izolacji termicznej
  • system 1-komorowy
  • głębokość ościeżnicy 51 mm
  • głębokość skrzydła drzwiowego 51 mm
  • grubość szklenia do 37 mm
  • możliwe wypełnienie szkłem pojedynczym, jednokomorowym i panelem
  • możliwość drzwi panelowych (panel dwustronnie klejony, drzwi jednoskrzydłowe otwierane do wewnątrz i na zewnątrz)
  • możliwość drzwi dymoszczelnych (spełniają kryteria klas dymoszczelności Sa, Sm zgodnie z PN-EN 13501-2+A1:2010)
  • możliwość drzwi przesuwnych i wahadłowych

Rysunki techniczne

Zapytaj o produkt

recaptcha This site is protected by reCAPTCHA and the Google Privacy Policy and Terms of Service apply.

Zapytaj o produkt

pole wymagane

recaptcha This site is protected by reCAPTCHA and the Google Privacy Policy and Terms of Service apply.

System drzwiowy Econoline z Aluminium: Idealne dla Budynków Użyteczności Publicznej

Wprowadzenie

Drzwi Econoline z aluminium to nowoczesne rozwiązanie dla tych, którzy poszukują drzwi o doskonałej jakości, przeznaczonych do ogólnego stosowania w budynkach użyteczności publicznej i przemysłowych.

Kluczowe Cechy Drzwi Econoline

Bez Izolacji Termicznej

  • System 1-komorowy
  • Głębokość ościeżnicy: 51 mm
  • Głębokość skrzydła drzwiowego: 51 mm
  • Grubość szklenia do 37 mm

Wersje Drzwi

  • Możliwość wbudowania w ściany działowe wykonane z segmentów Econoline
  • Projektowanie drzwi przesuwnych, wahadłowych, dymoszczelnych
  • Drzwi panelowe (Econoline panel doors)

Zastosowanie w Różnych Obiektach

Drzwi Econoline są idealne dla budynków użyteczności publicznej, takich jak biura, szkoły, placówki medyczne oraz przemysłowe.

Podsumowanie

Drzwi Econoline z aluminium to połączenie funkcjonalności z estetyką. Jeśli szukasz drzwi, które spełnią Twoje oczekiwania w zakresie jakości i designu, Econoline jest idealnym wyborem.

Skontaktuj
się z nami