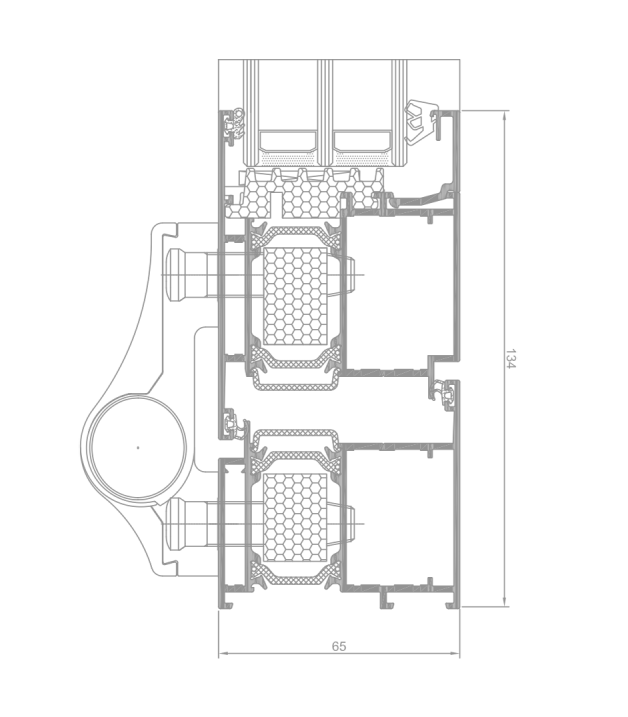
Imperial 800 to trzykomorowy system drzwiowy izolowany termicznie, przeznaczony do produkcji drzwi o wysokich parametrach cieplnych, dobrej wytrzymałości i szczelności.
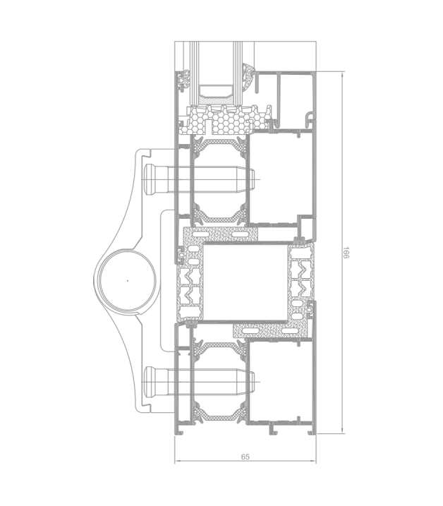
System dostępny jest w trzech wersjach termicznych Imperial 800, Imperial 800i oraz Imperial 800i+ co daje możliwość uzyskania parametru przenikalności cieplnej Ud rzędu 1,10 W/m2K.
System Imperial 800 jest kompatybilny z pozostałymi opcjami systemu Imperial.
| SYSTEM | IZOLACYJNOŚĆ TERMICZNA UF* | PRZEPUSZCZALNOŚĆ POWIETRZA | OBCIĄŻENIE WIATREM | WODOSZCZELNOŚĆ | 
| IP800 | Uf od 1,84 W/m2K | Klasa 4; PN-EN 12207 | Klasa CE 2400Pa; PN-EN 12210 | Klasa 8A; PN-EN12208 | 
| IP800 i+ | Uf od 1,64 W/m2K | Klasa 4; PN-EN 12207 | Klasa CE 2400Pa; PN-EN 12210 | Klasa 8A; PN-EN12208 | 
Ud= 1,12 W/m2K (dla drzwi Imperial 800 o wymiarach 1230 x 2180 mm, Ug=0,5)
Ud= 1,07 W/m2K (dla drzwi Imperial 800i o wymiarach 1230 x 2180 mm, Ug=0,5)
Ud= 1,05 W/m2K (dla drzwi Imperial 800i+ o wymiarach 1230 x 2180 mm, Ug=0,5)