VS600

VS600 to system przeznaczony do projektowania konstrukcji przesuwnych pionowych.

System wyposażony jest w napęd renomowanej firmy, schowany wewnątrz profilu, umożliwiający przesuwanie skrzydeł pionowo.

Napęd posiada dodatkowo funkcję uchylania, która ułatwia czyszczenie zewnątrz przeszklenia.

System znajduje zastosowanie w projektowaniu obiektów budownictwa mieszkaniowego oraz użyteczności publicznej (szkoły, szpitale, banki), jak również w zabudowie renowacyjnej.

Charakterystyka produktu

  • system z przekładką termiczną
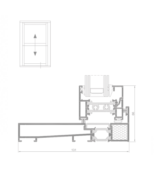
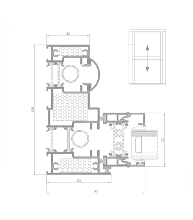
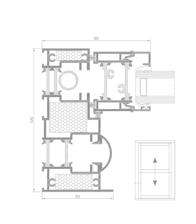
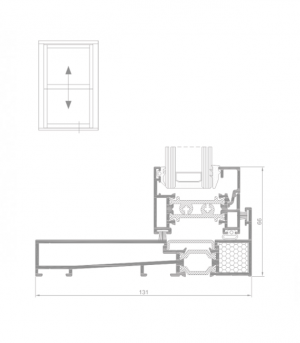
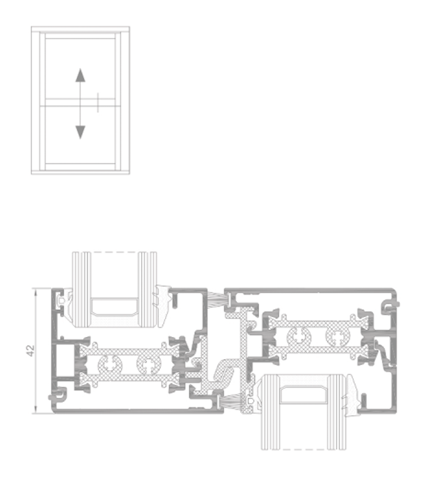
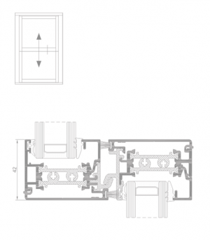
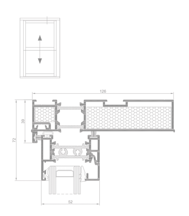
  • głębokość ościeżnicy: 126 mm
  • maksymalna szerokość: 1600 mm
  • maksymalna wysokość: 2490 mm
  • maksymalna waga skrzydła: 31 kg
  • grubość wypełnienia: 24 mm, 28 mm
  • napęd wewnątrz profilu
  • możliwość uchyłu


Dane techniczne

SYSTEM IZOLACYJNOŚĆ TERMICZNA UF* PRZEPUSZCZALNOŚĆ POWIETRZA OBCIĄŻENIE WIATREM WODOSZCZELNOŚĆ
VS600 Uf od 1,60  W/m2K Klasa 3 ; PN-EN 12207 Klasa A4; PN-EN 12210 Klasa 7A; (300 Pa)

Rysunki techniczne

Zapytaj o produkt

recaptcha This site is protected by reCAPTCHA and the Google Privacy Policy and Terms of Service apply.

Zapytaj o produkt

pole wymagane

recaptcha This site is protected by reCAPTCHA and the Google Privacy Policy and Terms of Service apply.
Skontaktuj
się z nami