Ecofutural

Ecofutural to trzykomorowy system okienny izolowany termicznie, przeznaczony do produkcji okien o wysokich parametrach cieplnych, dobrej wytrzymałości i szczelności.

System dostępny jest w trzech wersjach termicznych Ecofutural, Ecofutural i oraz Ecofutural i+ co daje możliwość uzyskania parametru przenikalności cieplnej U rzędu 1,10 W/m2K.

Na bazie systemu Ecofutural możliwe jest wykonanie okien z ukrytym skrzydłem - Ecofutural OC.

Charakterystyka produktu

  • system z przekładką termiczną
  • system 3-komorowy
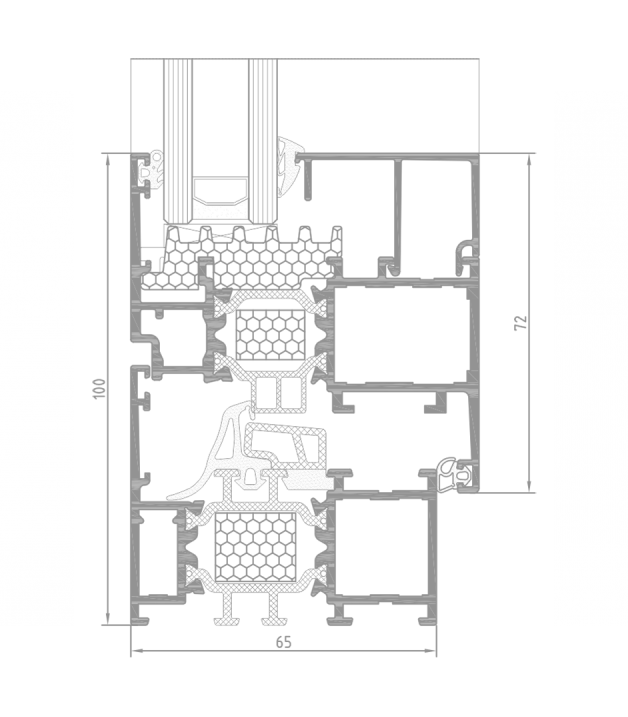
  • głębokość ościeżnicy 65-153 mm
  • głębokość skrzydła okiennego 74 mm
  • grubość szklenia kwatery stałej 4-50 mm
  • grubość szklenia skrzydła okiennego: 13-59 mm
  • 3 uszczelki
  • podwyższone wersje termiczne i, i+
  • okna rozwierno-uchylne, rozwierne, uchylne, witryny  
  • okna z ukrytym skrzydłem – podsystem Ecofutural OC
  • możliwość szklenia od zewnątrz

Dane techniczne

SYSTEM IZOLACYJNOŚĆ TERMICZNA UF* PRZEPUSZCZALNOŚĆ POWIETRZA OBCIĄŻENIE WIATREM WODOSZCZELNOŚĆ
EF od 1,50  W/m2K Klasa 4; PN-EN 12207 C4 (1600 Pa); PN-EN 12210 Klasa 9A (600Pa); PN-EN12208
EF i od 1,44 W/m2K Klasa 4; PN-EN 12207 C4 (1600 Pa); PN-EN 12210
Klasa 9A (600Pa); PN-EN12208
EF i+ od 1,27  W/m2K Klasa 4; PN-EN 12207 C4 (1600 Pa); PN-EN 12210 Klasa 9A (600Pa); PN-EN12208

Przykładowe parametry U dla okna RU:

  • U= 1,09 W/m2K (dla okna Ecofutural o wymiarach 1230 x 1480 mm, Ug=0,5)
  • U= 1,07 W/m2K (dla okna Ecofutural i o wymiarach 1230 x 1480 mm, Ug=0,5)
  • U= 1,05 W/m2K (dla okna Ecofutural i+o wymiarach 1230 x 1480 mm, Ug=0,5)

Rysunki techniczne

Zapytaj o produkt

recaptcha This site is protected by reCAPTCHA and the Google Privacy Policy and Terms of Service apply.

Zapytaj o produkt

pole wymagane

recaptcha This site is protected by reCAPTCHA and the Google Privacy Policy and Terms of Service apply.
Skontaktuj
się z nami