Superial 800

Superial 800 to trzykomorowy system drzwiowy z dobrą izolacyjnością termiczną, przeznaczony do produkcji drzwi o wysokich parametrach cieplnych, bardzo dobrej wytrzymałości i szczelności.

System dostępny jest w trzech wersjach termicznych: Superial 800,  Superial 800i oraz Superial 800i+, co daje możliwość uzyskania parametru przenikalności cieplnej Ud rzędu 1,00 W/m2K.

System Superial 800 jest kompatybilny z pozostałymi opcjami systemu Superial.

Na bazie systemu Superial 800 możliwe jest wykonanie drzwi panelowych.

Charakterystyka produktu

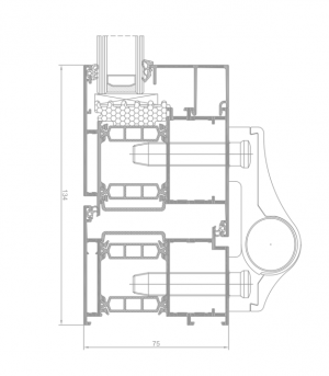
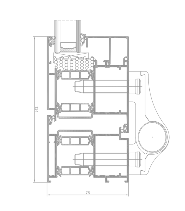
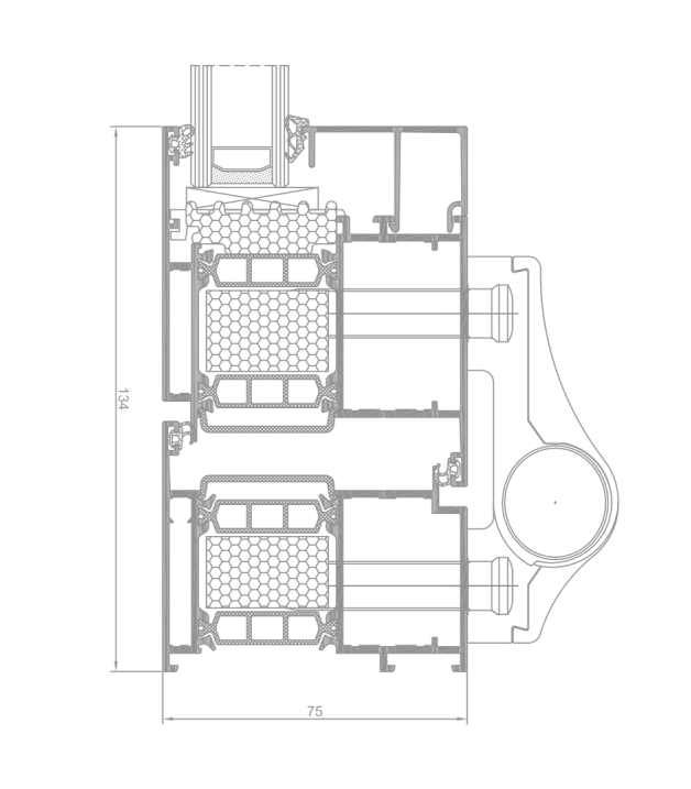
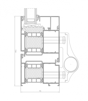
  • system z przekładką termiczną
  • system 3-komorowy
  • głębokość ramy drzwiowej 75 mm
  • głębokość skrzydła drzwiowego 75 mm
  • możliwe wypełnienie wkładane szkło jedno i dwukomorowe, panel
  • grubość wypełnienia wkładanego 14-60 mm
  • podwyższone wersje termiczne SP800i, SP800i+
  • możliwość wbudowania do witryn Superial
  • możliwość zastosowania izolowanego termicznie progu, możliwego do demontażu po zamontowaniu drzwi w otwór

Dane techniczne

SYSTEM IZOLACYJNOŚĆ TERMICZNA UF* PRZEPUSZCZALNOŚĆ POWIETRZA OBCIĄŻENIE WIATREM WODOSZCZELNOŚĆ
SP800 Uf od 1,61 W/m2K Klasa 4; PN-EN 12207 Klasa 2400Pa; PN-EN 12210 Klasa 8A; PN-EN12208
SP800 i+ Uf od 1,36 W/m2K Klasa 4; PN-EN 12207 Klasa 2400Pa; PN-EN 12210 Klasa 8A; PN-EN12208

Przykładowe parametry U dla drzwi:

Ud= 1,02 W/m2K (dla drzwi Superial 800 o wymiarach 1230x2180mm, Ug=0,5)

Ud= 1,00 W/m2K (dla drzwi Superial 800i o wymiarach 1230x2180mm, Ug=0,5)

Ud= 0,96 W/m2K (dla drzwi Superial 800i+ o wymiarach 1230x2180mm, Ug=0,5)

Rysunki techniczne

Zapytaj o produkt

recaptcha This site is protected by reCAPTCHA and the Google Privacy Policy and Terms of Service apply.

Zapytaj o produkt

pole wymagane

recaptcha This site is protected by reCAPTCHA and the Google Privacy Policy and Terms of Service apply.
Skontaktuj
się z nami