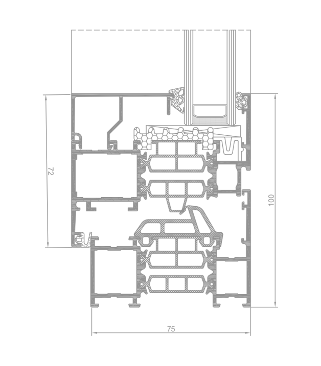
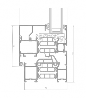
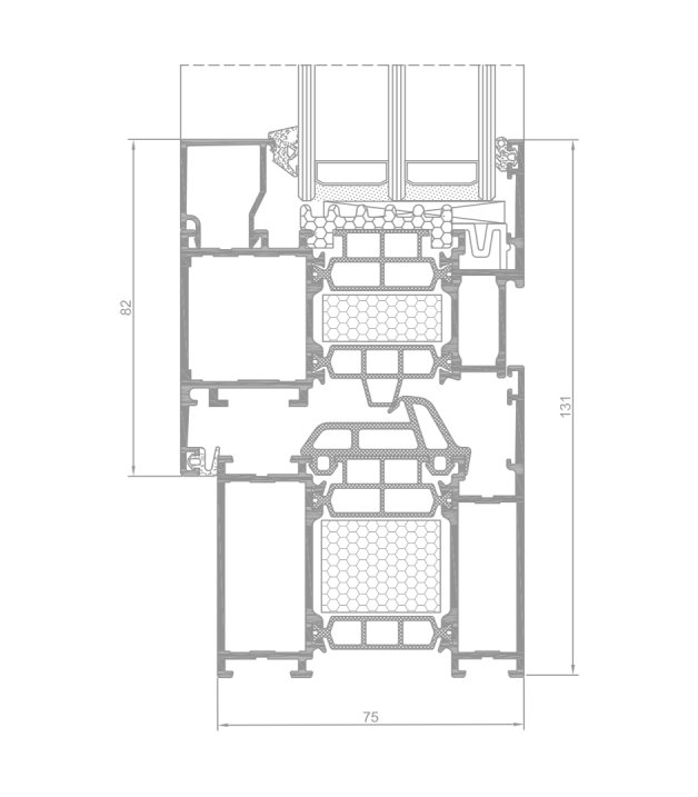
Superial to trzykomorowy system z dobrą izolacyjnością termiczną, przeznaczony do produkcji okien o wysokich parametrach cieplnych, bardzo dobrej wytrzymałości i szczelności.
System dostępny jest w trzech wersjach termicznych Superial, Superial i oraz Superial i+ co daje możliwość uzyskania parametru przenikalności cieplnej U rzędu 1,00 W/m2K.
Na bazie systemu Superial możliwe jest wykonanie okien z ukrytym skrzydłem - Superial SU oraz okien wychylnych na zewnątrz - Superial OUT.
| SYSTEM | IZOLACYJNOŚĆ TERMICZNA UF* | PRZEPUSZCZALNOŚĆ POWIETRZA | OBCIĄŻENIE WIATREM | WODOSZCZELNOŚĆ | 
| SP | Uf od 1,48 W/m2K | Klasa 4; norma PL-EN 12207 | Klasa C4/B4; norma PL- EN 12210 | Klasa E1200; norma PL-EN 12208 | 
| SP i+ | Uf od 1,12 W/m2K | Klasa 4; norma PL-EN 12207 | Klasa C4/B4; norma PL- EN 12210 | 
Klasa E1200; norma PL-EN 12208 |