primePort PAS

Drzwi PSK z okuciem primePort  PAS to wersja przesuwna z innowacyjną funkcją bezpiecznego wietrzenia.

Okucie umożliwia 3 funkcje: przesuwania, ryglowania oraz wietrzenia przy skrzydle równolegle odsuniętym od ramy za pomocą zwykłej klamki okiennej.

Powstająca w ten sposób 6-milimetrowa szczelina na całym obwodzie okna zapewnia naturalną wymianę powietrza. 

Obsługa jest intuicyjna i wyjątkowo komfortowa.

Drzwi przesuwne z okuciem primePort PAS dostępne jest w systemach:

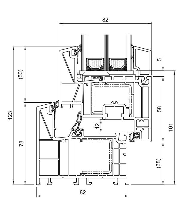
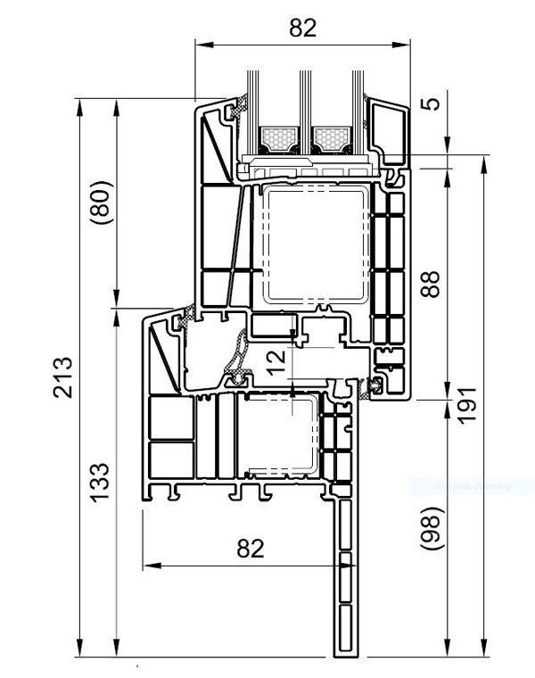
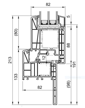
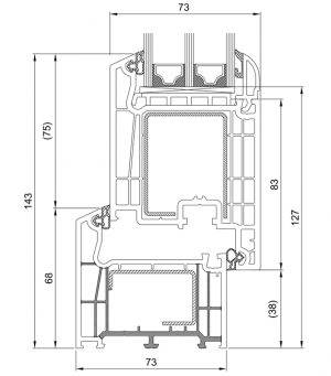
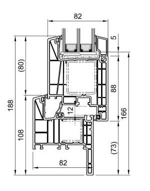
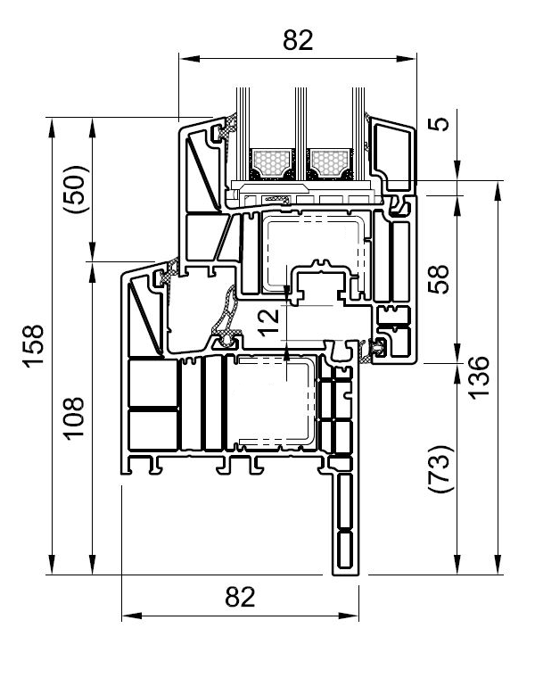
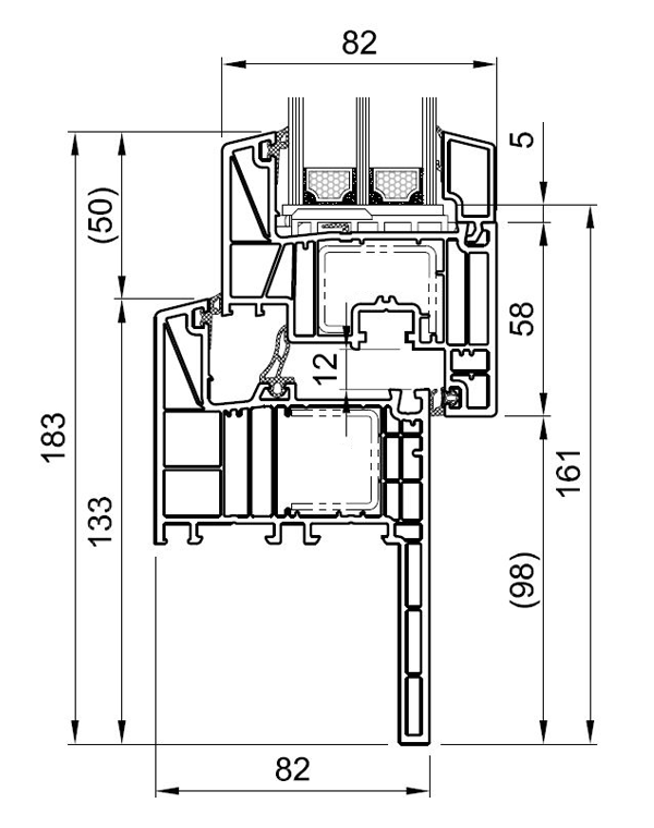
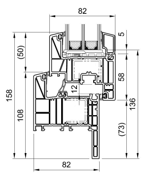
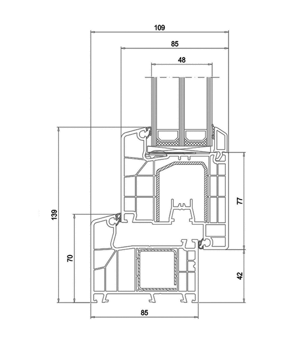
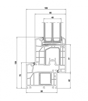
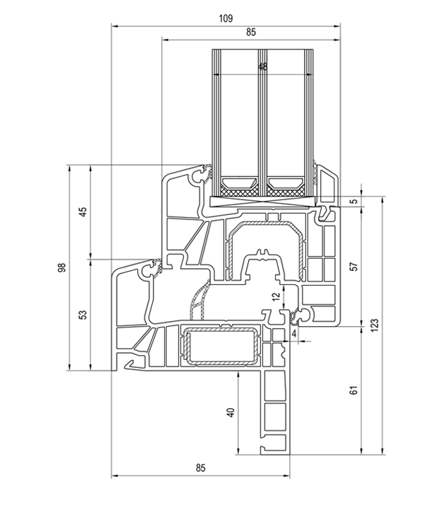
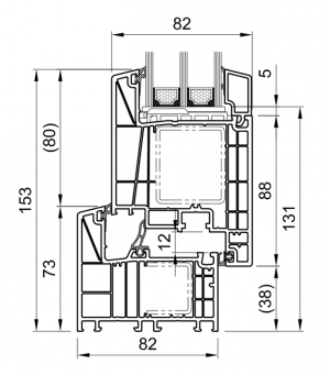
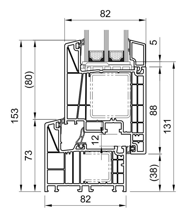
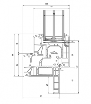
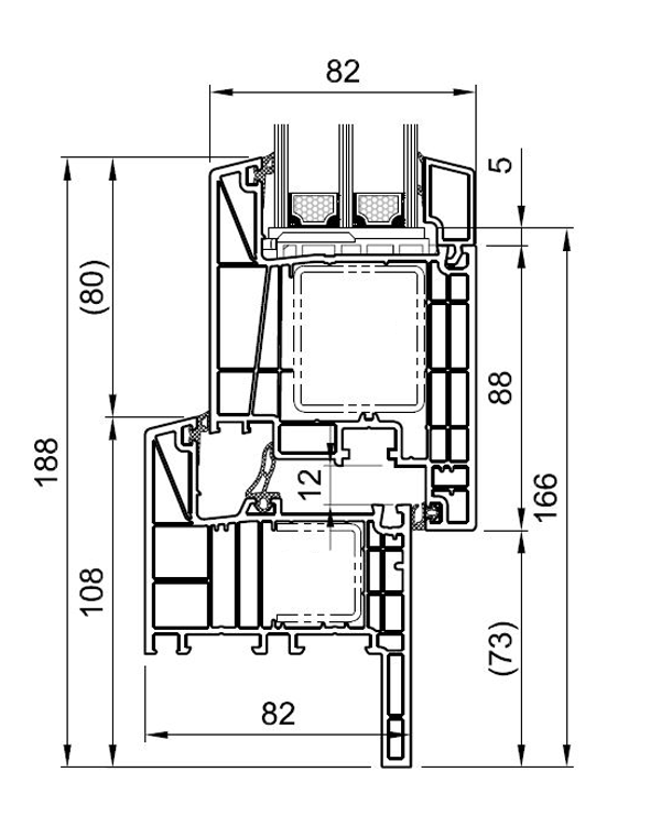
  • okiennych: Bluevolution 82, proEvolution 72, Termo Evolution 80, Termo Elegant 76
  • renowacyjnych: Bluevolution 82, proEvolution 72 MD


Termo Profil Sp. z o.o. uzyskała dofinansowanie na realizację projektu pt. „Wdrożenie nowej technologii zgrzewania kształtowego okien PVC” w ramach Funduszy Europejskich dla Śląskiego 2021-2027 - Fundusz na rzecz Sprawiedliwej Transformacji. Celem projektu jest wdrożenie nowej technologii zgrzewania kształtowego w firmie Termo Profil Sp. z o.o., poprzez zakup automatycznej linii zgrzewającej, która pozwoli wytwarzać okna o lepszej jakości i estetyce oraz zmniejszyć energochłonność procesu zgrzewania.

Charakterystyka produktu

  • maksymalna szerokość suwanki wynosi 3 m
  • maksymalna wysokość do 2,5 m
  • komfortowe sterowanie w klamce
  • skrzydło ruchome może mieć funkcję uchyłu
  • rama 5 lub 6-komorowa w zależności od profilu
  • szklenie w nieotwieralnej części zarówno w ramie  jak i w skrzydle
  • okucie obwiedniowe z zaczepami activPilot
  • wyjątkowa płynność funkcjonowania
  • bezpieczne wietrzenie także podczas nieobecności domowników
  • możliwość montażu klamki z kluczykiem
  • brak możliwości zlicowania ramy progowej  z podłożem

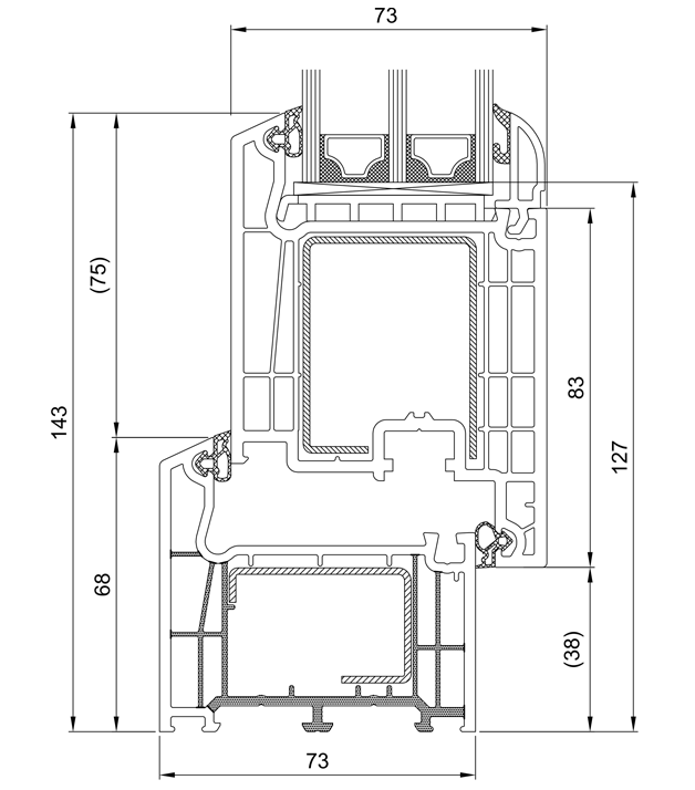
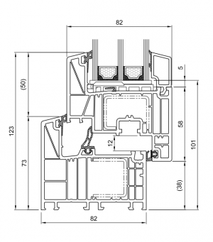
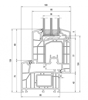
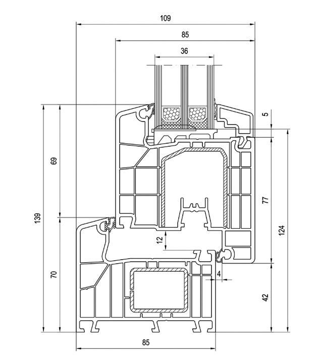
Rysunki techniczne

Galeria

Kolory standardowe

Kolory przedstawione na wyżej zamieszczonych zdjęciach mogą minimalnie odbiegać od kolorów rzeczywistych

Kolory pozastandardowe

Kolory przedstawione na wyżej zamieszczonych zdjęciach mogą minimalnie odbiegać od kolorów rzeczywistych

klamki do PSK

PSK do okucia SK-S / PAS

Klamki do suwanki PSK do okucia SK-S / PAS:

  • część chwytowa wykonana z aluminium
  • bogata oferta kolorystyczna
  • jakość i solidność 
  • dostępne również w wersji z kluczykiem

     

    Swing Roto do Suwanki SK-S

    KLAMKI SWING ROTO DO SUWANKI SK-S:

    • klasyczna linia klamek Roto Line, niezawodnie działających przez długie lata
    • elegancki wzór o łagodnej linii w połączeniu z elementami z aluminium
    • komfortowa obsługa

    Zapytaj o produkt

    pole wymagane

    recaptcha This site is protected by reCAPTCHA and the Google Privacy Policy and Terms of Service apply.

    Zapytaj o produkt

    pole wymagane

    recaptcha This site is protected by reCAPTCHA and the Google Privacy Policy and Terms of Service apply.

    Drzwi Przesuwne primePort PAS - Rewolucja w Designie i Funkcjonalności

    Charakterystyka Drzwi Przesuwnych primePort PAS

    Drzwi przesuwne primePort PAS od Termo Profil to nowoczesne rozwiązanie, które łączy w sobie elegancję, funkcjonalność i innowacyjność. Są one idealnym wyborem dla osób poszukujących praktycznych i estetycznych rozwiązań do swojego domu.

    • Maksymalna Szerokość i Wysokość: Do 3 m szerokości i 2,5 m wysokości.
    • Komfortowe Sterowanie: Intuicyjna obsługa za pomocą klamki.
    • Wielofunkcyjność: Możliwość przesuwania, ryglowania i wietrzenia.
    • Nowoczesne Okucia: Zastosowanie okuć obwiedniowych z zaczepami activPilot.

    Zalety Drzwi Przesuwnych primePort PAS

    Drzwi przesuwne primePort PAS oferują wiele korzyści:

    1. Oszczędność Przestrzeni: Idealne rozwiązanie do małych pomieszczeń, gdzie tradycyjne drzwi mogłyby zajmować zbyt dużo miejsca.
    2. Nowoczesny Wygląd: Elegancki design pasujący do różnych stylów wnętrz.
    3. Wysoka Funkcjonalność: Łatwość obsługi i możliwość wietrzenia bez otwierania drzwi.
    4. Trwałość i Bezpieczeństwo: Wykonane z wysokiej jakości materiałów, zapewniające długotrwałe użytkowanie.
    5. Energooszczędność: Dobre właściwości izolacyjne pomagają w utrzymaniu odpowiedniej temperatury w pomieszczeniu.

    Dlaczego Wybrać Drzwi Przesuwne primePort PAS?

    Wybierając drzwi przesuwne Duoport PAS, decydujesz się na produkt, który łączy w sobie nowoczesną technologię, wygodę użytkowania i estetyczny wygląd. Są to idealne rozwiązania dla tych, którzy cenią sobie innowacyjność, funkcjonalność i design.

    Skontaktuj
    się z nami