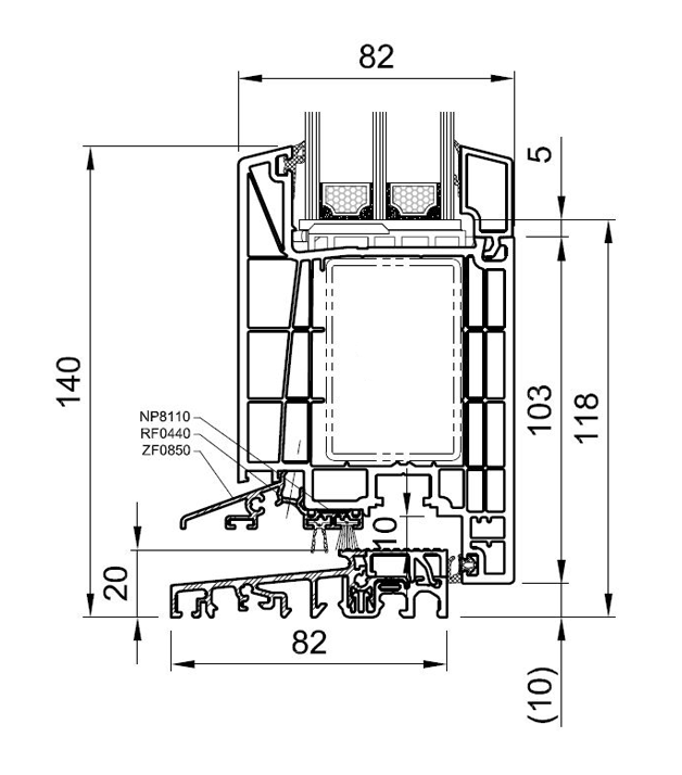
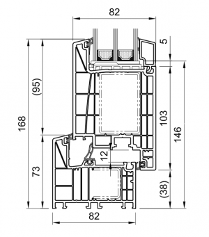
System drzwiowy BluEvolution 82 MD z trzema uszczelkami, posiadający optymalne właściwości termiczne i akustyczne.
Wysoka stabilność, zabezpieczenie antywłamaniowe i długa żywotność to cechy charakterystyczne dla tego systemu.
Certyfikaty CE pozwalają na używanie naszych produktów w całej Europie.
Profil drzwiowy spełnia wszystkie warunki dofinansowania w ramach projektu „Czyste powietrze”.
Dzięki szerokiej gamie wypełnień drzwiowych ozdobnych i ekonomicznych będą oryginalną wizytówką Twojego domu.
Pełna oferta wypełnień drzwiowych PVC znajduje się tutaj.
Termo Profil Sp. z o.o. uzyskała dofinansowanie na realizację projektu pt. „Wdrożenie nowej technologii zgrzewania kształtowego okien PVC” w ramach Funduszy Europejskich dla Śląskiego 2021-2027 - Fundusz na rzecz Sprawiedliwej Transformacji. Celem projektu jest wdrożenie nowej technologii zgrzewania kształtowego w firmie Termo Profil Sp. z o.o., poprzez zakup automatycznej linii zgrzewającej, która pozwoli wytwarzać okna o lepszej jakości i estetyce oraz zmniejszyć energochłonność procesu zgrzewania.

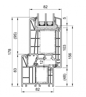
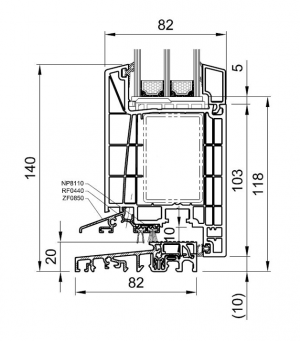
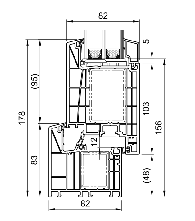
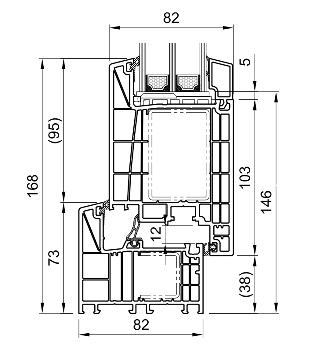
Dane techniczne:
Kolory przedstawione na wyżej zamieszczonych zdjęciach mogą minimalnie odbiegać od kolorów rzeczywistych
Klamki drzwiowe DUBLIN 35:
Klamki DUBLIN 35 dostępne jako:
Klamki drzwiowe LIEGE:
Klamki drzwiowe LIEGE dostępne jako:
Klamki drzwiowe JOWISZ:
Klamki drzwiowe JOWISZ dostępne w wersji:
KLAMKI DRZWIOWE PLUTON / VICTORY - KLAMKI DO SZEROKIEGO SKRZYDŁA DRZWI:
W naszej ofercie posiadamy pochwyty drzwiowe:
Klamki drzwiowe BRUSSELS:
Klamki BRUSSELS dostępne jako:
Zasuwnica STANDARD ryglowana kluczem - standard w Termo Profil.
Bezpieczeństwo zapewniają 2 rygle masywne, które zagłębiają się w zaczepach, zamocowanych na ramie, skutecznie zapobiegając wyważeniu skrzydła z ościeżnicy.
Zastosowanie listwowych zasuwnic trzypunktowych powoduje równomierne rozłożenie sił, działających na drzwi na całej długości ościeżnicy.
Zasuwnica AUTOMAT z funkcją automatycznego ryglowania i charakterystycznymi podwójnymi ryglami, w których niezależnie od siebie działa masywny rygiel hakowy oraz zintegrowany z nim element uszczelniający.
Ten nowy element rygla dba o optymalny docisk skrzydła do ościeżnicy w każdej sytuacji.
2 rygle uruchamiane są w momencie domknięcia drzwi przez wyzwalacz magnetyczny usytuowany na ramie.
Tak zaryglowane drzwi są dostateczną ochroną i nie wymagają dodatkowego ryglowania w części środkowej zamka.
Szkło ornamentowe jest szkłem o zmniejszonej przejrzystości, która wynika z rozproszenia promieni świetlnych na jego wzorzystej powierzchni.
Jego zadaniem jest przepuszczenie światła słonecznego i jednocześnie zapewnienie prywatności.
Ma zastosowanie zarówno w budownictwie mieszkaniowym jak i przemysłowym. Idealnie sprawdza się np. w oknach łazienkowych, oknach piwnicznych, garażach czy drzwiach wejściowych.
Certyfikat - Autoryzowany Producent Okien i Drzwi PVC
(format: pdf, rozmiar: 204.5K)
Wybór drzwi zewnętrznych to nie tylko kwestia estetyki – to decyzja o bezpieczeństwie, komforcie oraz energetycznej wydajności naszego domu. W erze nowoczesnych technologii i rosnącej świadomości ekologicznej, system drzwiowy Bluevolution 82 od Termo Profil wyznacza nowe standardy w dziedzinie drzwi wejściowych. Te wyjątkowe drzwi łączą w sobie zaawansowane rozwiązania techniczne z eleganckim designem, spełniając oczekiwania nawet najbardziej wymagających klientów.
Bluevolution 82 to wynik lat doświadczenia i innowacji w dziedzinie stolarki okiennej i drzwiowej. Ten system drzwiowy oferuje nie tylko wyjątkową wytrzymałość i długą żywotność, ale również optymalne właściwości termiczne i akustyczne, co jest kluczowe dla utrzymania ciepła, komfortu i spokoju w domu. Z myślą o środowisku, drzwi te zostały zaprojektowane tak, aby minimalizować straty ciepła, co przekłada się na niższe rachunki za ogrzewanie i wspiera ideę zrównoważonego rozwoju.
W każdym aspekcie, od bezpieczeństwa po design, drzwi Bluevolution 82 przekraczają tradycyjne oczekiwania, stając się nie tylko praktycznym elementem domu, ale również jego estetycznym i funkcjonalnym atutem.
System drzwiowy Bluevolution 82 wyposażony jest w trzy uszczelki, co zapewnia znakomitą izolację i efektywność energetyczną. Jest to kluczowe nie tylko w kontekście komfortu termicznego, ale także w zakresie ochrony środowiska i spełnienia warunków projektu „Czyste powietrze”.
Drzwi Bluevolution 82 dostępne są w szerokiej gamie wypełnień drzwiowych, zarówno ozdobnych, jak i ekonomicznych. To pozwala na stworzenie oryginalnej wizytówki Twojego domu, idealnie dopasowanej do indywidualnych preferencji i charakteru budynku.
Profesjonalny montaż okien i drzwi jest kluczowy dla zapewnienia ich pełnej funkcjonalności i efektywności. Termo Profil oferuje nie tylko wysokiej jakości produkty, ale również profesjonalne usługi montażu i serwisu, gwarantując satysfakcję i bezpieczeństwo użytkowania.
1. Jakie są główne cechy drzwi Bluevolution 82?
Drzwi Bluevolution 82 oferują wysoką stabilność, optymalne właściwości termiczne i akustyczne, zaawansowane zabezpieczenie antywłamaniowe i długą żywotność.
2. Czy drzwi te posiadają certyfikaty CE?
Tak, drzwi Bluevolution 82 posiadają certyfikaty CE, co pozwala na ich użytkowanie w całej Europie i stanowi potwierdzenie ich wysokiej jakości.
3. Czy drzwi Bluevolution 82 kwalifikują się do dofinansowania w ramach projektu „Czyste powietrze”?
Tak, profil drzwiowy spełnia wszystkie warunki dofinansowania w ramach projektu „Czyste powietrze”, co jest dowodem na ich efektywność energetyczną.
4. Czy istnieje możliwość personalizacji drzwi?
Tak, drzwi Bluevolution 82 są dostępne w szerokiej gamie wypełnień drzwiowych, zarówno ozdobnych, jak i ekonomicznych, umożliwiając stworzenie indywidualnego wyglądu.
Wybierając drzwi zewnętrzne Bluevolution 82 od Termo Profil, inwestujesz w produkt, który łączy w sobie nowoczesność, bezpieczeństwo i styl. Skontaktuj się z nami, aby dowiedzieć się więcej o tym, jak możemy dopasować nasze drzwi do Twoich unikalnych potrzeb i wymagań.