Max Light Invisible

Max Light Invisible to system okienny z izolacją termiczną, charakteryzujący się gładką i smukłą linią profila.

Specyficzny kształt profili, upodabniający konstrukcje do profili stalowych, nadaje konstrukcji industrialny, nowoczesny charakter.

Charakterystyczną cechą konstrukcji Max Light INVISIBLE jest jej wygląd: dzięki specjalnemu kształtowi ramy, skrzydło może zostać ukryte – od strony zewnętrznej całość wygląda jak stałe szklenie w ramie.

Charakterystyka produktu

  • system z przekładką termiczną
  • system wielokomorowy
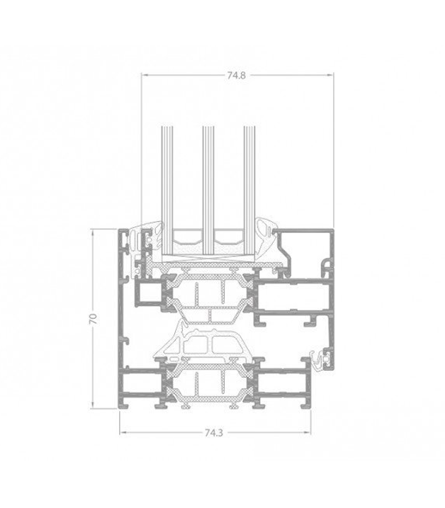
  • głębokość ościeżnicy 75 mm
  • głębokość skrzydła 78 mm
  • grubość szklenia do 59 mm
  • 3 uszczelki
  • zastosowanie systemu: okna stałe, okna otwierane: jedno- lub dwuskrzydłowe z możliwością uchylenia, otwierane do wewnątrz
  • specyficzny kształt profili upodabniający konstrukcje do profili stalowych

Rysunki techniczne

Zapytaj o produkt

recaptcha This site is protected by reCAPTCHA and the Google Privacy Policy and Terms of Service apply.

Zapytaj o produkt

pole wymagane

recaptcha This site is protected by reCAPTCHA and the Google Privacy Policy and Terms of Service apply.
Skontaktuj
się z nami