Genesis Drzwi Panelowe

Izolowany termicznie system aluminiowy przeznaczony do projektowania drzwi panelowych jedno i dwuskrzydłowych otwieranych do wewnątrz jak i na zewnątrz, również z doświetlami.

Skrzydło przystosowane do wykonania panelu jednostronnie i dwustronnie klejonego.

System kompatybilny z systemem Genesis 75.

Szeroki wybór paneli zapewnia elegancji wygląd oraz pozwala na dużą swobodę w projektowaniu.

Charakterystyka produktu

  • system z przekładką termiczną
  • system 3-komorowy
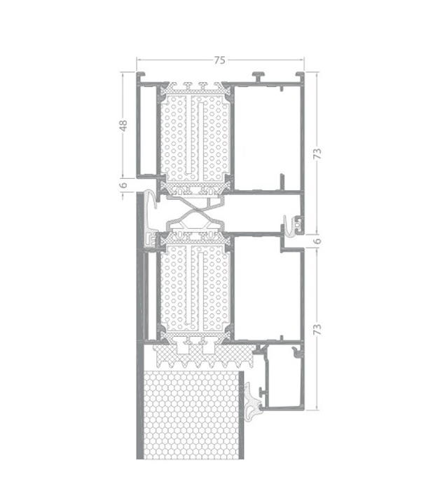
  • głębokość ramy drzwiowej 75 mm
  • głębokość skrzydła drzwiowego 75 mm
  • możliwe wypełnienie panelem jedno i dwustronnie klejonym (drzwi jedno i dwuskrzydłowe otwierane do wewnątrz i na zewnątrz)
  • grubość wypełnienia drzwi z panelem jednostronnie klejonym 40-66 mm
  • grubość wypełnienia drzwi z panelem dwustronnie klejonym 75 mm

Rysunki techniczne

Zapytaj o produkt

recaptcha This site is protected by reCAPTCHA and the Google Privacy Policy and Terms of Service apply.

Zapytaj o produkt

pole wymagane

recaptcha This site is protected by reCAPTCHA and the Google Privacy Policy and Terms of Service apply.

System Genesis - Aluminiowe Drzwi Panelowe

Kluczowe cechy:

  • Izolacja termiczna: Wysokiej jakości system aluminiowy zapewniający doskonałą izolację termiczną.
  • Wszechstronność: Przeznaczony do projektowania drzwi panelowych jedno i dwuskrzydłowych, otwieranych zarówno do wewnątrz, jak i na zewnątrz. Możliwość dodania doświetli.
  • Kompatybilność: System jest w pełni kompatybilny z systemem Genesis 75.
  • Wybór paneli: Szeroka gama paneli gwarantuje elegancki wygląd i dużą swobodę w projektowaniu.

Specyfikacja techniczna:

  • System z przekładką termiczną
  • Konstrukcja 3-komorowa
  • Głębokość ramy drzwiowej: 75 mm
  • Głębokość skrzydła drzwiowego: 75 mm
  • Możliwość wypełnienia panelem jedno i dwustronnie klejonym
  • Grubość wypełnienia drzwi z panelem jednostronnie klejonym: 40-66 mm
  • Grubość wypełnienia drzwi z panelem dwustronnie klejonym: 75 mm
Skontaktuj
się z nami